Il tempio di Bellona era un antico tempio romano che sorgeva vicino al tempio di Apollo Sosiano e al teatro di Marcello a Roma.
Era dedicato a Bellona, dea della guerra italica e fu promesso in voto nel 296 a.C. da Appio Claudio Cieco dopo una vittoria sugli Etruschi, nella zona conosciuta come in circo Flaminio.
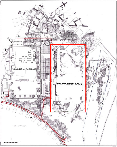
Ubicazione
Il tempio si trovava al di fuori del pomerium cittadino, in prossimità delle mura e ospitò diverse riunioni del Senato quando queste coinvolgevano stranieri (ricevimento di ambascerie di popoli non alleati) o comandanti militari (come nel caso del saluto ai proconsoli in partenza per la provincia loro assegnata). Qui ad esempio il consolare Marco Claudio Marcello, al termine dell'estate del 211 a.C., fu accolto dal pretore Gaio Calpurnio Pisone e dal senato, radunato per ascoltare il proconsole nella sua relazione sulla fine dell'assedio di Siracusa.
Storia
Il console del 79 a.C. della stessa famiglia del fondatore, Appio Claudio Pulcro, vi appose le imagines clipeatae (ritratti su scudi) dei suoi antenati, e continuava dunque ad essere avvertito il legame tra il tempio e la gens che l'aveva edificato.
Il tempio è stato identificato con i resti di un podio rinvenuti nei lavori degli anni 1930 per la liberazione del teatro di Marcello, a lungo considerato "ignoto". I resti dell'elevato di questo edificio appartengono a una ricostruzione di epoca augustea, non ricordata dalle fonti antiche, che si ebbe probabilmente nella fase di trasformazione di tutta l'area per la costruzione del teatro. Il dedicante fu forse un discendente della famiglia del fondatore, Appio Claudio Pulcro, console del 38 a.C. e trionfatore sugli Hispani nel 33 a.C., fedele alleato di Ottaviano e parente di Livia.
I resti del podio sono costituiti dal riempimento in cementizio tra le strutture portanti dell'elevato che erano costruite in blocchi (opera quadrata), asportati dopo l'abbandono per essere reimpiegati e quindi ora mancanti. Sul podio inoltre insiste attualmente la struttura della chiesa di Santa Rita, di Carlo Fontana, qui spostata dalle pendici del Campidoglio durante i lavori degli anni 1930. L'elevato doveva essere, come nel vicino tempio di Apollo Sosiano, parte in marmo (forse solo la facciata) e parte in travertino.
Dai resti e dalla schematica pianta riportata sulla Forma Urbis Severiana risulta che il tempio fosse un "periptero" (con colonne su tutti i lati della cella) con sei colonne in facciata ("esastilo") e nove sui lati lunghi. Al podio si accedeva per mezzo di una scalinata frontale.
La Columna Bellica
Dinanzi al tempio di Bellona doveva trovarsi la columna bellica, utilizzata nella cerimonia delle dichiarazioni di guerra. Infatti, secondo il rito tradizionale, risalente ai tempi più antichi della storia romana, la guerra doveva essere dichiarata dai feziali scagliando una lancia dal territorio romano verso il territorio nemico. Al momento della guerra contro Pirro, re dell'Epiro, non essendo i due stati confinanti, il rito sembrava impossibile da svolgere. Un prigioniero di guerra fu quindi costretto ad acquistare un piccolo lembo di terra nella zona in circo Flaminio, dove fu eretta una colonna (forse in legno), che poteva rappresentare simbolicamente il territorio nemico: la cerimonia si poté dunque svolgere scagliando la lancia contro la colonna. In seguito il rito continuò a ripetersi con queste nuove modalità (l'ultimo esempio conosciuto è nel 179 d.C., sotto Marco Aurelio).
Un'area circolare con la pavimentazione rifatta di fronte al tempio è stata interpretata come il luogo dove il monumento sorgeva, anche sulla base delle indicazioni date dalle fonti antiche. Nei pressi, davanti al tempio di Apollo Sosiano, sorgeva invece il perirrhanterion, dove si svolgevano le cerimonie lustrali alla fine delle campagne militari.
Note
Bibliografia
Voci correlate
- Teatro di Marcello
- Tempio di Apollo Sosiano
Altri progetti
- Wikimedia Commons contiene immagini o altri file sul Tempio di Bellona
Collegamenti esterni
- (EN) Temple of Bellona, su Enciclopedia Britannica, Encyclopædia Britannica, Inc.
- Templi di Apollo Sosiano e Bellona, su Sovrintendenza Capitolina ai Beni Culturali. URL consultato l'11 dicembre 2019.
- Il tempio di Bellona nel volume di S.Platner e T.Ashby, A Topographical Dictionary of Ancient Rome, del 1929 (prima dello scoprimento dei resti presso il teatro di Marcello)
- La cerimonia della dichiarazione di guerra presso i Romani, su dirittoestoria.it.




